+

RUDERE SU TERRENO EDIFICABILE A DONADA

    Rif. 336
    Contratto Vendita
    Comune Porto Viro
    Prezzo 55.000 €
2 camere
134 m2

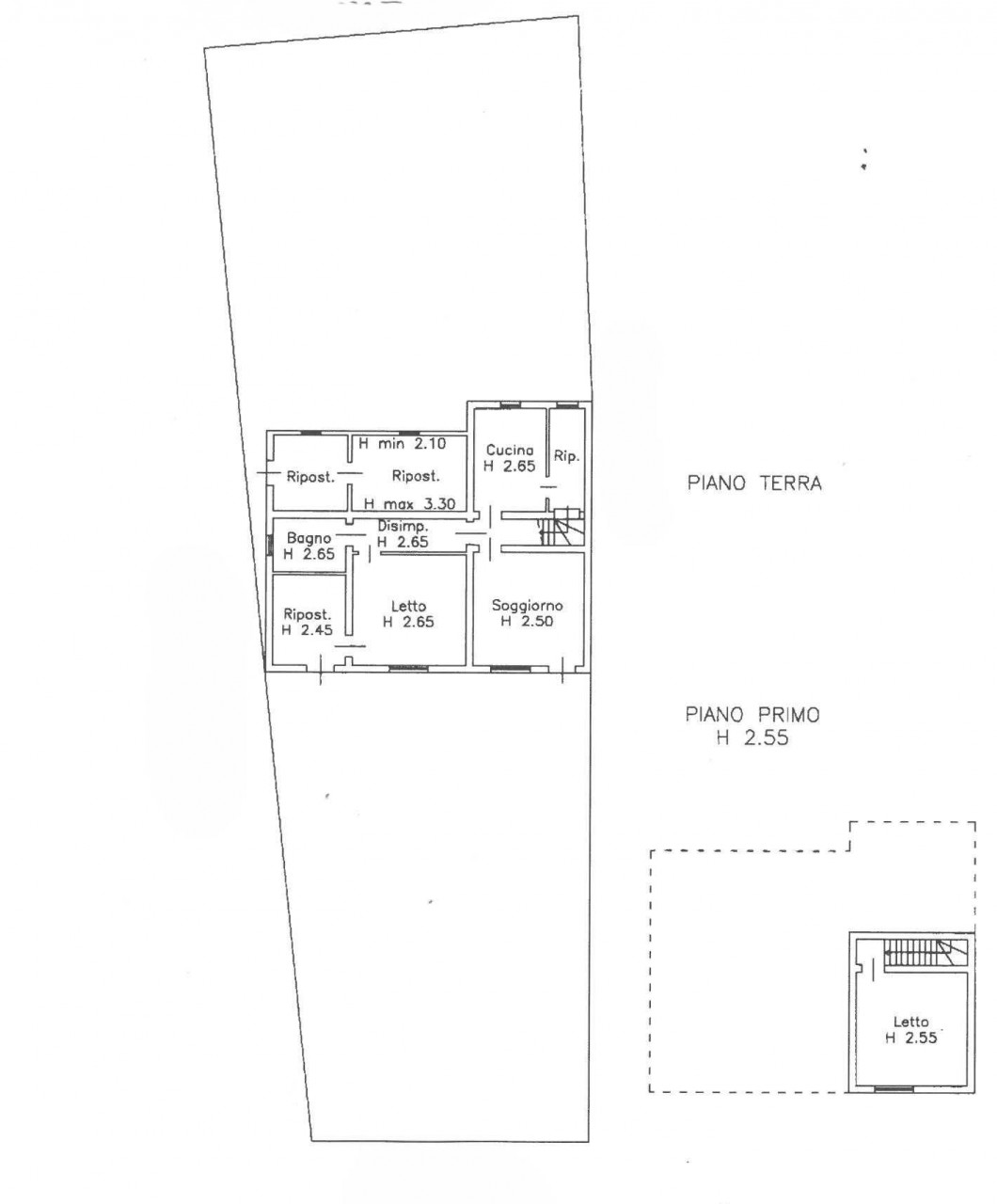
**Immobile in vendita: Opportunità di ristrutturazione Centro di Donada** Siamo lieti di presentare un'opportunità unica per acquisire una proprietà situata a soli 300 metri dal centro della località di Donada. Si tratta di un progetto di ristrutturazione completa che comprende un edificio rustico e un lotto edificabile adiacente, inclusi nel prezzo di acquisto. ### Dettagli principali: - **Superficie totale del terreno**: 1.425 metri quadrati - **Indice di edificabilità**: 0,70 - **Superficie massima edificabile**: Fino a 340 metri quadrati, distribuiti su due piani (170 metri quadrati per piano). - **Potenziale di investimento**: Lo spazio potrebbe essere trasformato in quattro appartamenti, ciascuno di 85 metri quadrati. ### Disposizione attuale dell'immobile: - **Piano terra**: - Soggiorno - Cucina - Ripostiglio - Corridoio - Bagno - Piccola camera da letto/ripostiglio - Ulteriore ripostiglio esterno accessibile dall'esterno - **Primo piano**: - Camera da letto principale ### Ulteriori vantaggi: Questa proprietà è idonea per vari incentivi fiscali destinati ai progetti di ristrutturazione, rendendola un'opzione di investimento ancora più interessante. Che stiate cercando di intraprendere un progetto di ristrutturazione o di sviluppare nuove unità residenziali, questa proprietà offre una base promettente con ampio potenziale. Non perdete l'opportunità di investire in una posizione privilegiata!

Video

Planimetrie

Ambienti

Soggiorno
Cucina
Giardino
Posto auto 4

Livelli & comfort

Livelli Piano terra , Primo piano
Numero accessi carrai 1

Informazioni Extra

Connettività FIBRA
Impianto elettrico Da fare

classe energetica

Mappa

Compila il form